Menu
mieszkanie
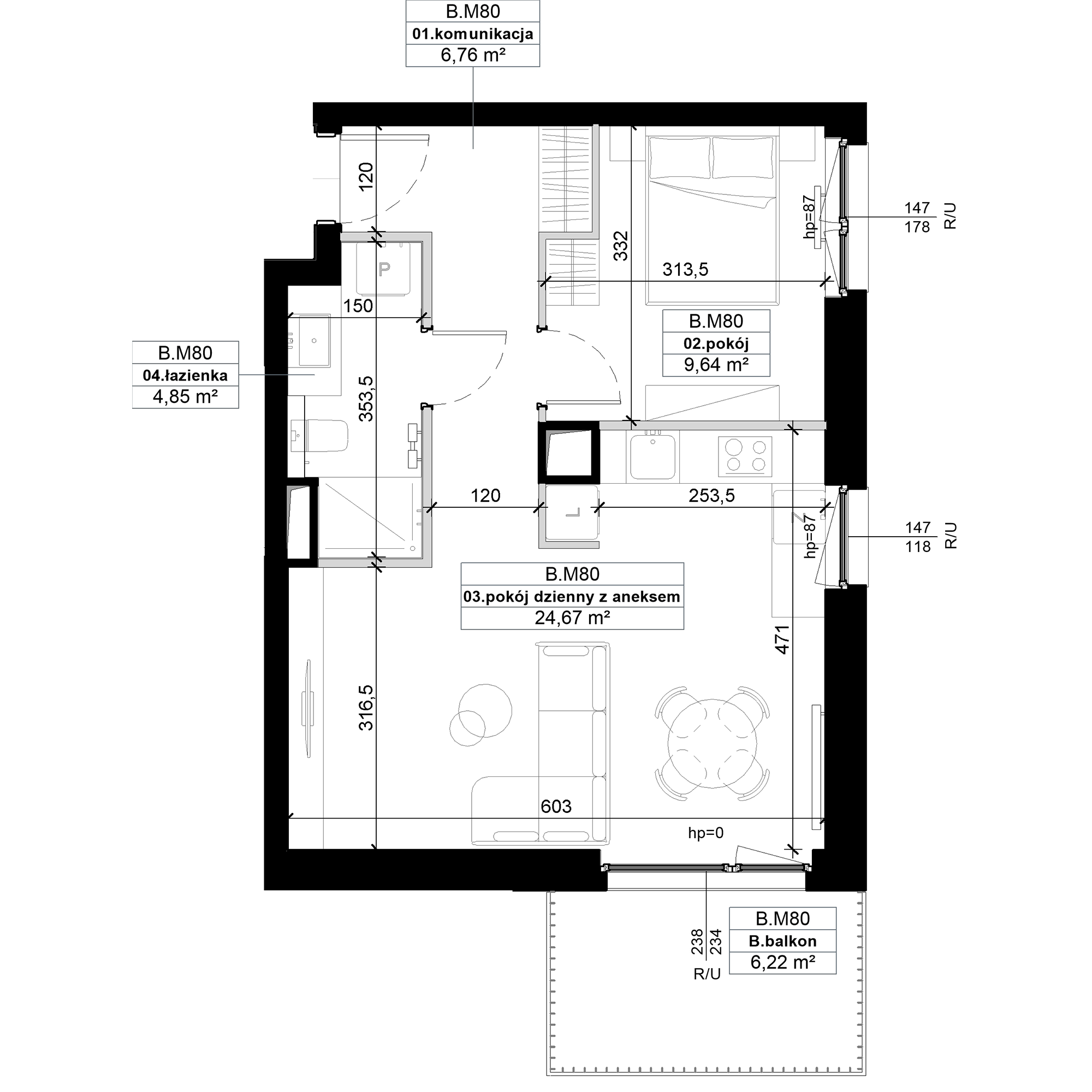
B.M80
Piętro 3
Metraż 45.92m2
Pokoje 2
Balkon
Niedostępne
Prognozowana rata**

widok z okna

dollhouse 3d

spacer 3d

Mmm, czy ktoś piecze ciasteczka?
Polityka cookies