Menu
mieszkanie
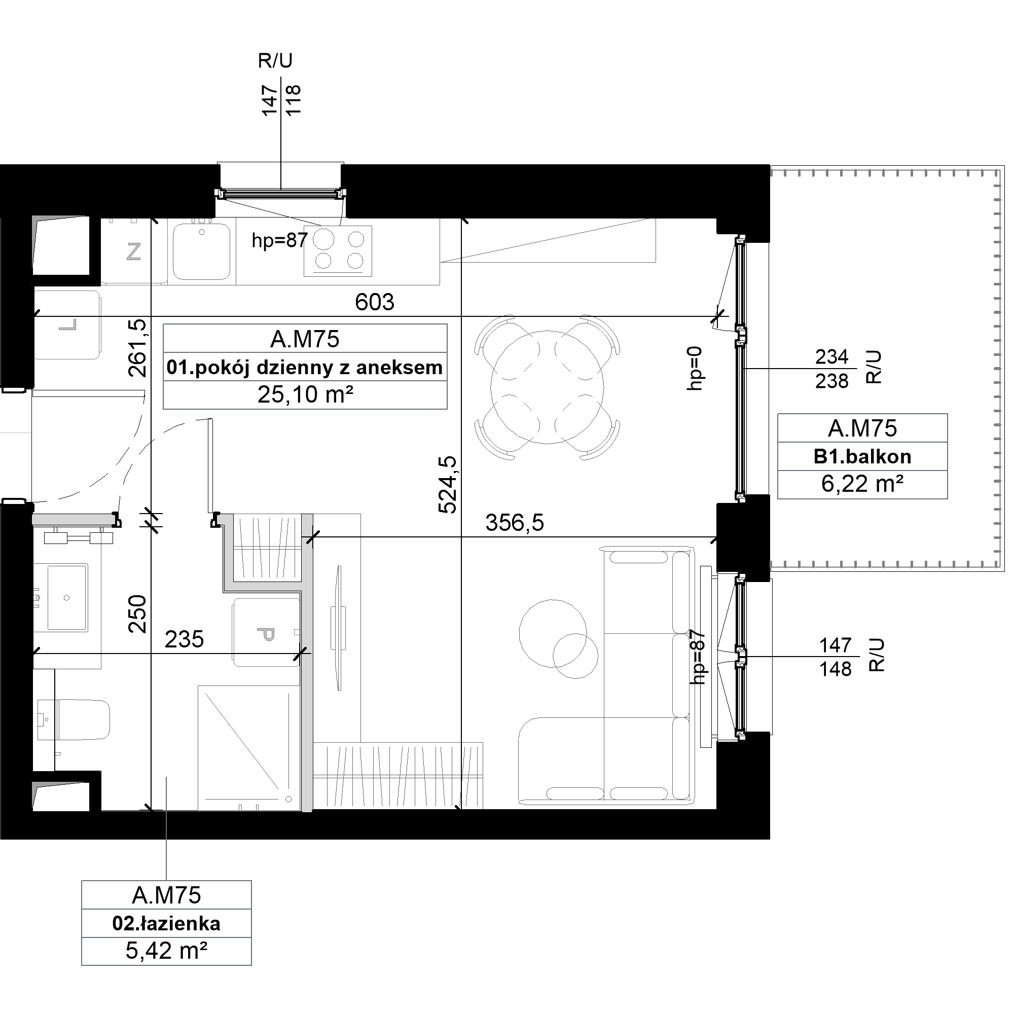
A.M75
Piętro 3
Metraż 30.52m2
Pokoje 1
Balkon
Niedostępne
Prognozowana rata**

widok z okna

dollhouse 3d

spacer 3d

Mmm, czy ktoś piecze ciasteczka?
Polityka cookies