Menu
mieszkanie
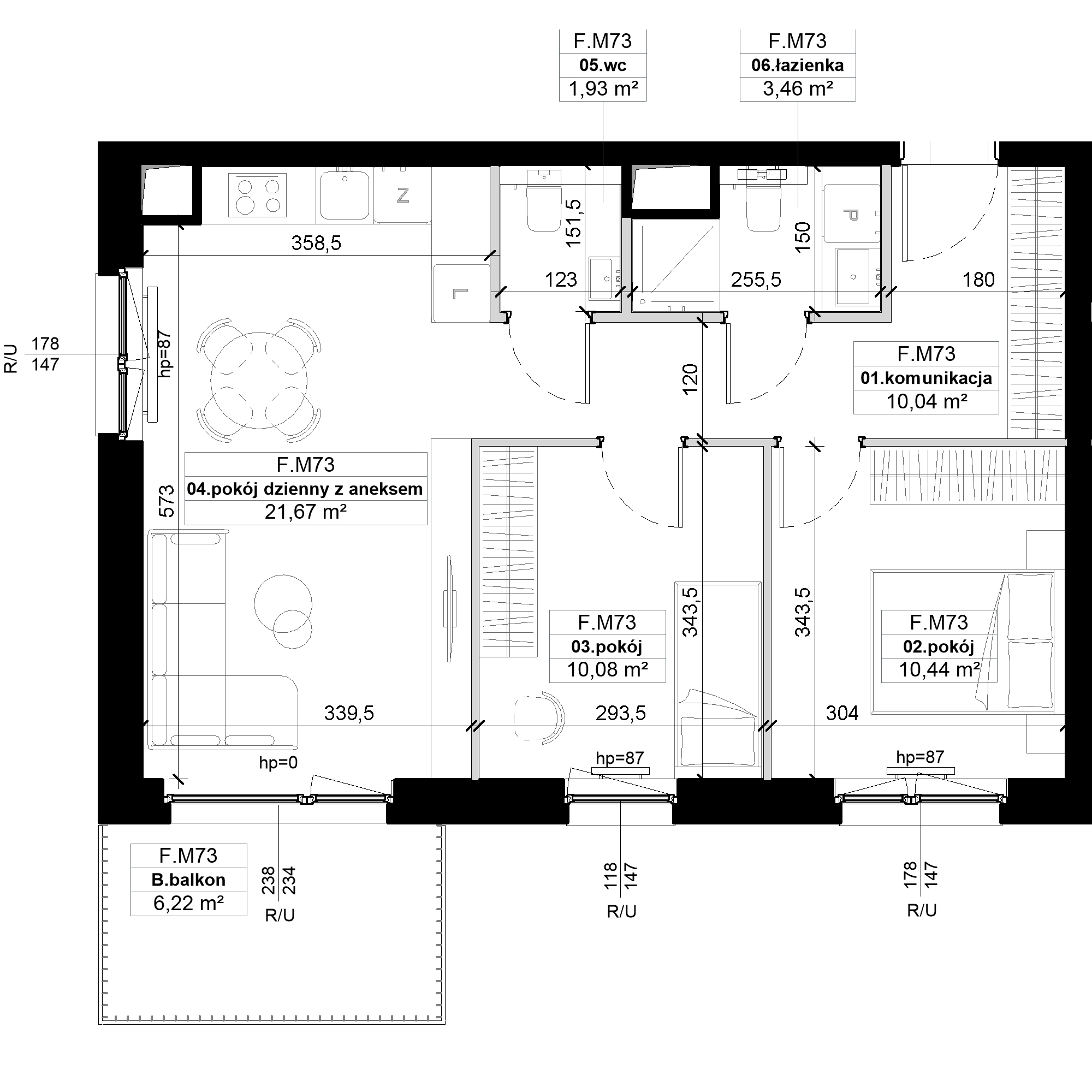
F.M73
Piętro 2
Metraż 57.62m2
Pokoje 3
Balkon
Niedostępne
Prognozowana rata**

widok z okna

dollhouse 3d

spacer 3d

Mmm, czy ktoś piecze ciasteczka?
Polityka cookies