Menu
mieszkanie
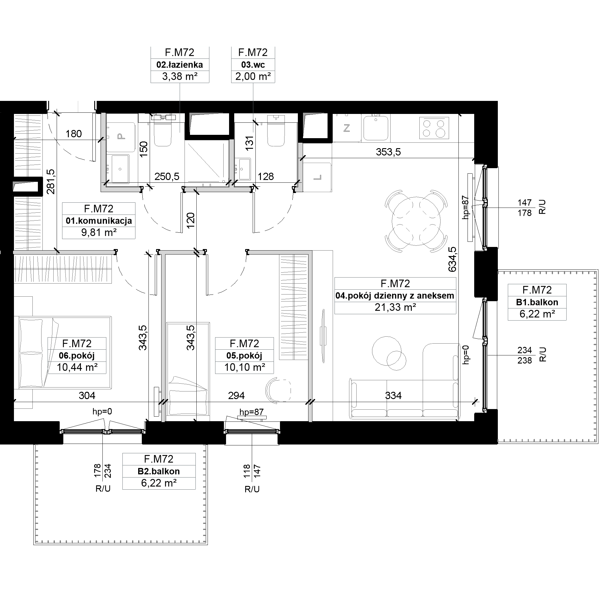
F.M72
Piętro 2
Metraż 57.06m2
Pokoje 3
Balkon
Niedostępne
Prognozowana rata**

widok z okna

dollhouse 3d

spacer 3d

Mmm, czy ktoś piecze ciasteczka?
Polityka cookies