Menu
mieszkanie
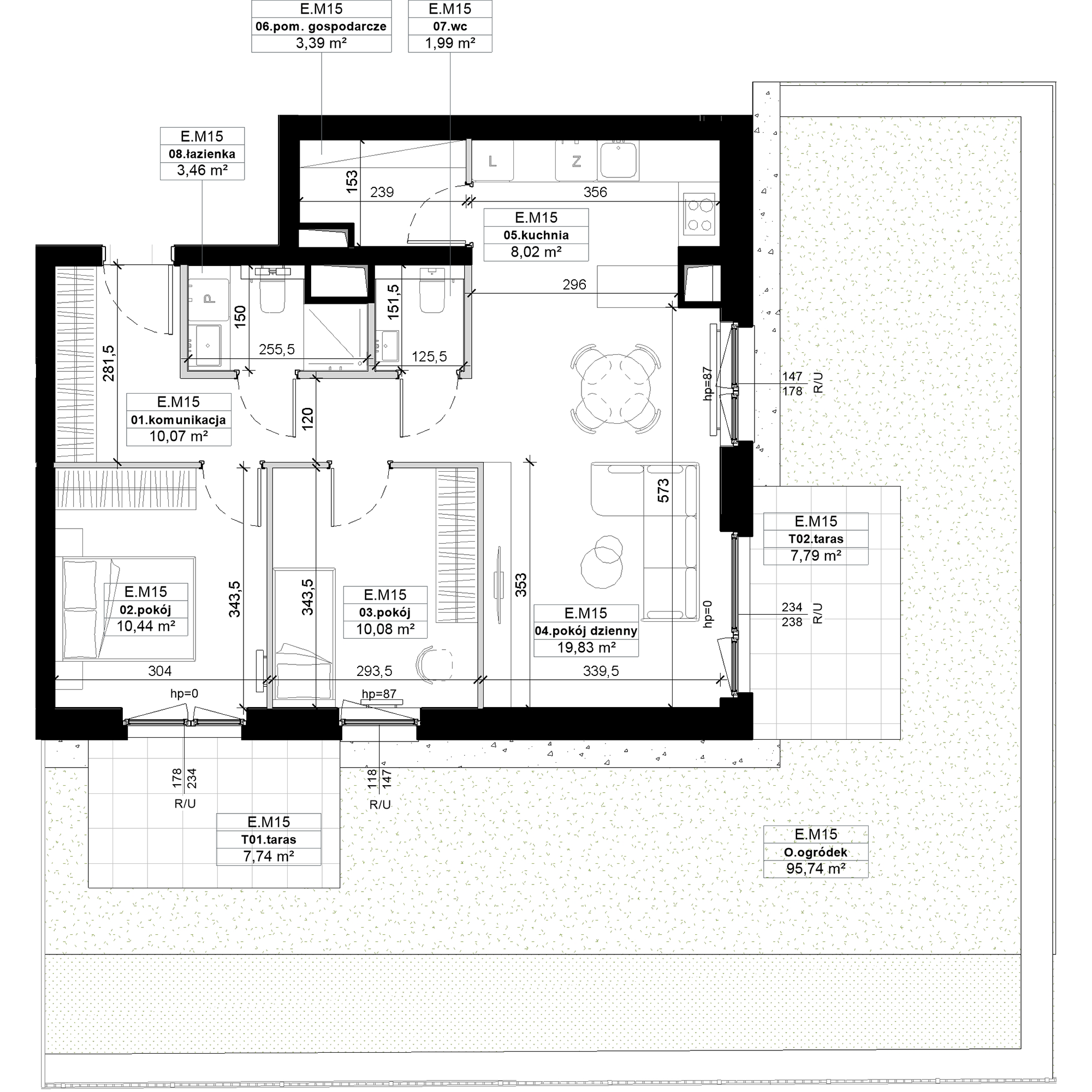
E.M15
Piętro 0
Metraż 67.28m2
Pokoje 3
Taras
Ogródek
Niedostępne
Prognozowana rata**

widok z okna

dollhouse 3d

spacer 3d

Mmm, czy ktoś piecze ciasteczka?
Polityka cookies