Menu
mieszkanie
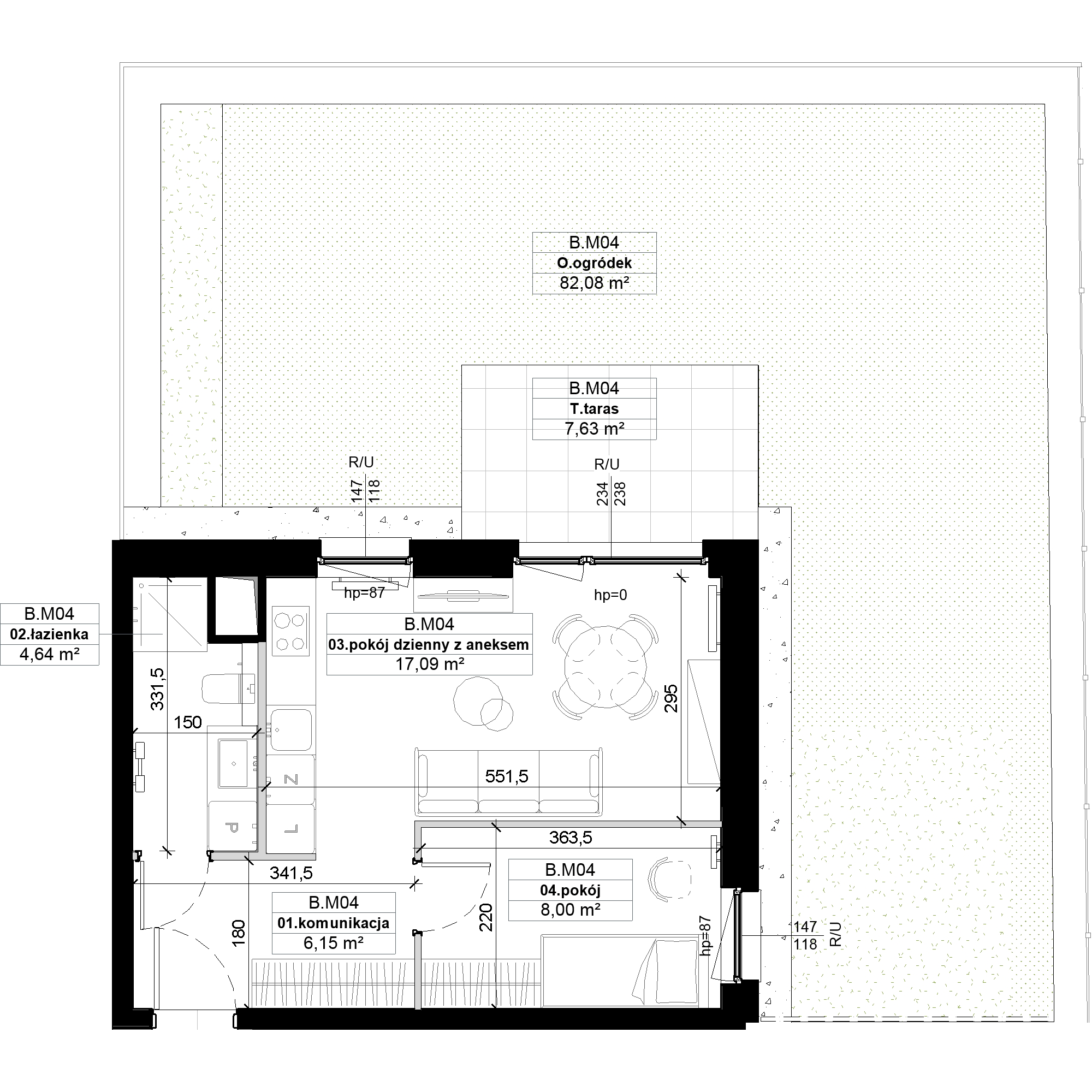
B.M04
Piętro 0
Metraż 35.88m2
Pokoje 2
Taras
Ogródek
Niedostępne
Prognozowana rata**

widok z okna

dollhouse 3d

spacer 3d

Mmm, czy ktoś piecze ciasteczka?
Polityka cookies