Menu
mieszkanie
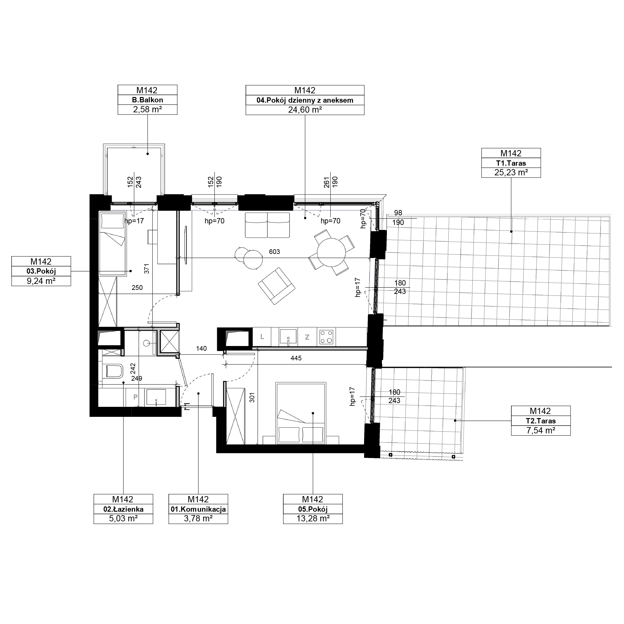
M142
Piętro 3
Metraż 55.98m2
Pokoje 3
Balkon
Taras
Niedostępne
Rezerwacja

widok z okna

dollhouse 3d

spacer 3d

Mmm, czy ktoś piecze ciasteczka?
Polityka cookies