Menu
mieszkanie
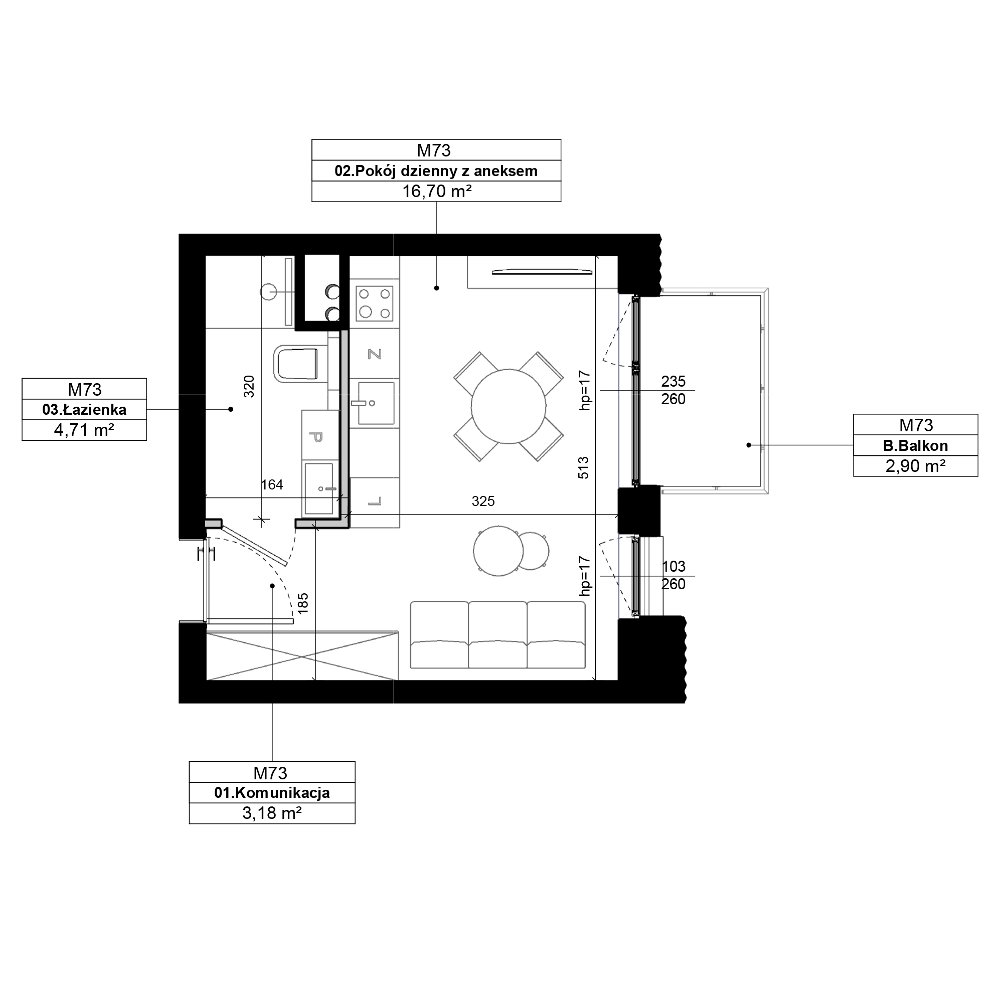
M073
Piętro 2
Metraż 24.59m2
Pokoje 1
Balkon
Niedostępne

widok z okna

dollhouse 3d

spacer 3d

Mmm, czy ktoś piecze ciasteczka?
Polityka cookies