Menu
mieszkanie
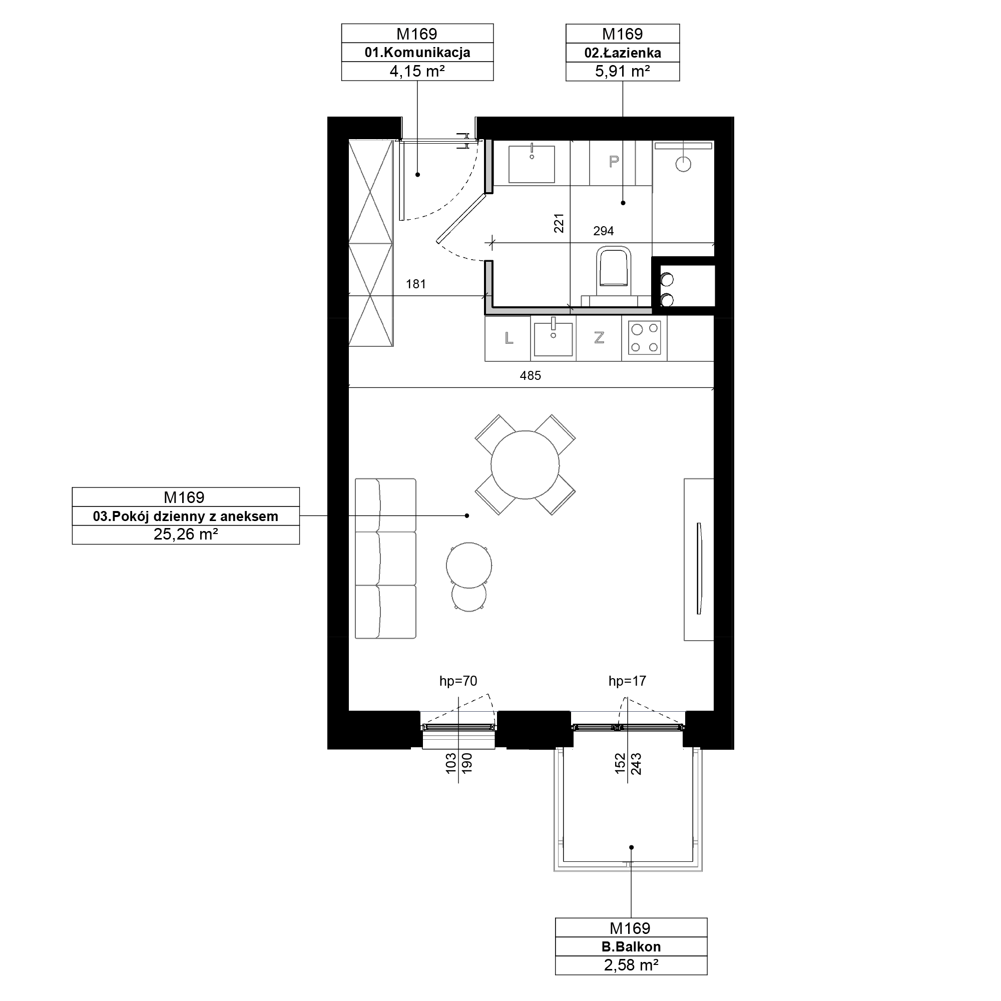
M169
Piętro 4
Metraż 35.37m2
Pokoje 1
Niedostępne
Rezerwacja

widok z okna

dollhouse 3d

spacer 3d

Mmm, czy ktoś piecze ciasteczka?
Polityka cookies