Menu
mieszkanie
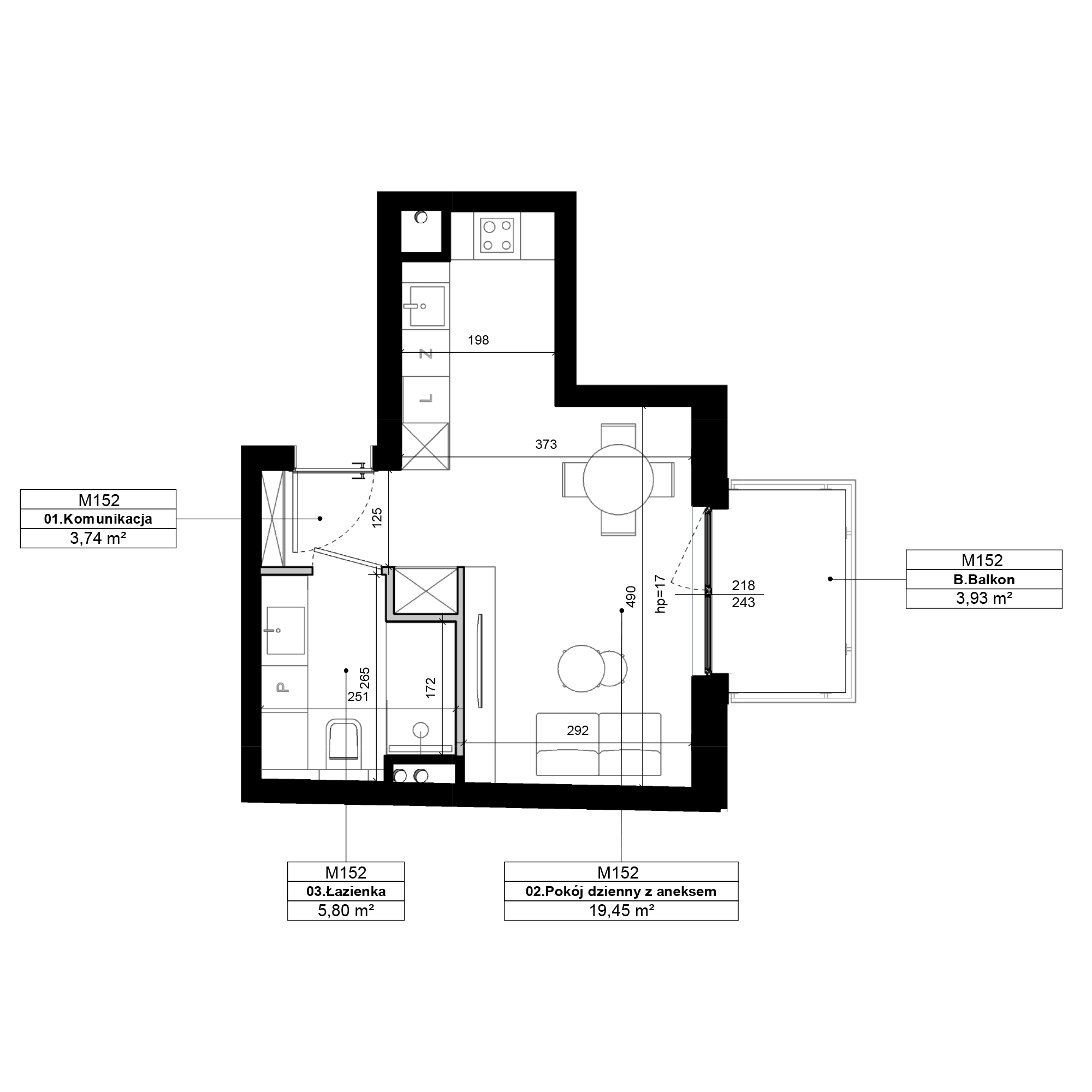
M152
Piętro 4
Metraż 29.03m2
Pokoje 1
Niedostępne
Rezerwacja

widok z okna

dollhouse 3d

spacer 3d

Mmm, czy ktoś piecze ciasteczka?
Polityka cookies